
Центр гимнастики в Лужниках с его сложной волнообразной кровлей проектировали с помощью ARCHICAD и нескольких сторонних программ, используя OPEN BIM подход. Рассказываем, как это было.
Центр художественной гимнастики Ирины Винер-Усмановой в Лужниках стал победителем в номинации «BIM-проект. Спортивные объекты» первого Всероссийского конкурса BIM-технологий. Работа над проектом началась в первой половине 2016 года, на сегодняшний день возведен каркас здания, весной 2018 года должны стартовать отделочные работы – быстрота проектирования и реализации в немалой степени связана с тем, что в работе над проектом авторы использовали подход OPEN BIM, основанный на применении открытых форматов файла IFC, позволяющий специалистам, работающим в различных программных комплексах, успешно и оперативно взаимодействовать на всех этапах моделирования.

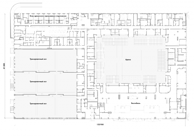
Спорткомплекс строится на месте знаменитого вещевого рынка в северо-восточной части Лужников, включает в себя арену для проведения соревнований, тренировочные залы, медицинский центр, гостиницу, офисы администрации, а также служебные и бытовые помещения – все это собрано под одной крышей в объеме простого параллелепипеда, чья лаконичная форма позволила оптимально разместить все необходимые функции на достаточно компактном участке. Впрочем, простота стереометрии глазом не считывается, во всяком случае, не считывается сразу – все внимание привлекает накрывающая его волной кровля. Начиная свой разбег на западе, она опрокидывается вертикальной стеной на востоке. Металлическое покрытие поверхности чешуйками, переливающееся на солнце, усиливает динамический эффект.
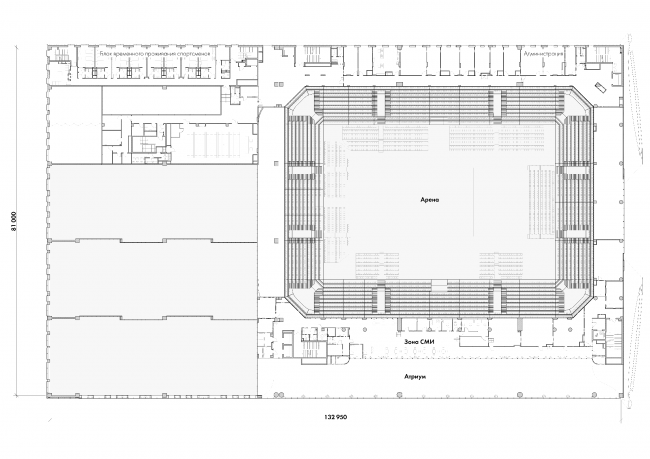
Разгон волны начинается над тренировочными залами, а самый высокий ее гребень соответствует главной арене с трибунами на 1250 мест, сердцу здания – здесь проходят главные соревнования и тренировки. Зал высотой 18 метров «над ковром», что оптимально для занятий художественной гимнастикой, может трансформироваться для проведения концертов и других массовых мероприятий.



Общественные зоны расположены в юго-восточной части центра: здесь находится главный вход и вход для прессы с высоким атриумом вестибюля, фойе и гардероб. Северная же отдана спортсменам: здесь оборудован отдельный вход и на пяти этажах размещены медицинский центр и гостиница на 150 человек. Функциональное зонирование подчеркнуто остеклением: начиная с прозрачного с юго-восточного фасада оно «уплотняется», ритм пилонов учащается, чтобы затем, в северной части, перейти к минимальному остеклению на фасаде гостиницы.

Проект здания, волнообразная кровля которого напоминает развевающуюся гимнастическую ленту и поэтому отлично соответствует своему назначению, становясь, фактически, гигантским объемным символом гимнастического центра, разработан архитекторами ТПО «Прайд».

От эскиза к проекту
По словам архитекторов, выразительный образ, связанный со стремительным движением, возник сразу же. Но одно дело – очертить образ росчерком пера, и совсем другое – довести замысел, связанный со смелой криволинейной формой, до реализации, причем в достаточно короткие сроки.

ТПО «Прайд» работает с ARCHICAD с момента основания компании – на этой программе решено было остановиться, поскольку она разработана как специализированный профессиональный инструмент для работы архитекторов. Выбор не разочаровал: разработчики постоянно совершенствуют инструмент, значительно упрощая рабочие процессы, приспосабливая его для актуальных нужд проектировщиков. Особенно важным архитекторы ТПО «Прайд» считают возможность коллективной работы – в бюро 65 сотрудников, в координации их командной работы помогает ARCHICAD Teamwork. Так что вопрос о том, на каком ПО будет выполнен проект, не стоял: поиск идеи и ее обсуждение с заказчиком сопровождались созданием эскизной модели в ARCHICAD, хотя визуализацию отдельных элементов для презентации выполнили в 3ds Max.

Выбрать приемлемые варианты архитектурных решений позволили трехмерные модели, создаваемые в ARCHICAD начиная с этапа концепции. В частности, авторы разработали несколько вариантов несущих кровлю конструкций: от деревянных стропил до металлокаркаса. Последний был выбран, удовлетворив как эстетические, так и экономические требования. Проработанную концепцию ТПО «Прайд» представили заказчику в мобильном приложении BIMx® GRAPHISOFT.
Использование BIMx® ощутимо помогло в принятии решения по проекту – уверена его ГАП Елена Мызникова: «На финальной презентации концепции мы предоставили заказчику возможность не только увидеть будущее здание снаружи и внутри, но и «пройтись» по нему с помощью приложения, загруженного на планшеты заказчика. Детально рассмотреть фасады, взаимосвязь помещений, проанализировать материалы. Благодаря тщательно проработанной модели и ее представлению заказчик поверил – все, что было нарисовано, будет построено. Одно из важных преимуществ приложения BIMx® – оно не дает серьезной нагрузки «на железо» и может быть загружено на любой смартфон и планшет. Приложение стало серьезным подспорьем в общении с заказчиком и позднее, в работе над стадией «П», тем более что оно позволяет осуществлять одновременную навигацию по 2D-документации и 3D-моделям зданий».
OPЕN BIM
Архитекторы ТПО «Прайд» считают, что технологии информационного моделирования зданий (Building Information Modeling – BIM) необходимо активно использовать в современном проектировании и строительстве, и уже четыре года работают с технологиями BIM-проектирования. Однако именно в проекте центра Ирины Винер они впервые решили применить OPEN BIM подход для организации совместной работы со смежными специалистами, работающими с другим ПО.
По словам автора и ГАПа проекта Николая Гордюшина, решение было закономерным: «Когда началась работа, получая чертежи от смежников, мы поняли, что они также работают с BIM-решениями. Тогда мы решили попробовать «сборку» полноценной модели с использованием открытого IFC формата. Для архитектора, с которого все начинается и на котором все заканчивается, на котором, собственно, и держится весь проект, OPEN BIM – это возможность быстро реагировать на изменения в проекте, предложенные специалистами из других областей, а для субпроектировщиков – возможность работать в тех программах, к которым они привыкли и которые соответствуют требованиям профессии».

Центр художественной гимнастики имени Ирины Винер-Усмановой в Лужниках. Главная схема BIM © ООО «ТПО Прайд»
Как известно, самое сложное в работе – начать ее. Так и в случае с проектированием Центра художественной гимнастики больше всего времени ушло на отлаживание системы совместной работы.
В начале работы архитекторы ТПО «Прайд» создали BIM-модель будущего объекта в ARCHICAD, затем данные базовой модели, отфильтрованные в зависимости от нужд субподрядчиков, передавались им в открытом формате IFC; и в этом же формате базовая модель, обогащаясь разработками смежников, возвращалась назад в бюро для встраивания в основную модель. Используемый протокол IFC сохраняет не только все геометрическое описание в 3D, но также его местоположение и отношения, а также все свойства, или параметры, каждого объекта, благодаря чему он может выполнять функции универсального инструмента сохранения и передачи информации из разных программ для BIM-проектирования. На этапе создания базовой модели, с которой затем придется работать сторонним специалистам, важно правильно классифицировать все объекты и понимать, что традиционной модели, с которой работают архитекторы, может быть недостаточно, – уточняют авторы.
На нейтральной территории
Инженерные разделы разрабатывались с использованием ПО Revit-проектирование с плагинами, позволяющими сделать расчет спецификаций. Архитекторы ТПО «Прайд» успешно справились с с функциями BIM-менеджеров, собирая всю информацию в модель и передавая ее дальше по цепочке.
Один из главных участников процесса «сборки», главный архитектор бюро Виталий Крестьянчик положительно оценивает возможности OPEN BIM подхода: «От приобретенного опыта мы получили массу позитива. Несмотря на то, что процесс отладки передачи данных занял достаточно большое время, в результате мы гораздо больше времени выиграли за счет того, что благодаря OPEN BIM подходу у нас была возможность моментально отслеживать несоответствия в проекте – так называемые коллизии – и оперативно вносить изменения в ходе работы. Первоначально нужно было понять, какие данные нужны для каждого из разделов для работы смежников – и это, пожалуй, один из самых длительных процессов».

BIM-модель в 3D сразу же доказала правильность принятого решения – в первой же модели с внесенной инженерной частью проекта проверка на коллизии по инженерным сетям обнаружила около 1800 несоответствий. Безусловно, традиционные чертежи 2D также предполагают поиск ошибок, однако на это уходит больше времени и не всегда удается выявить их до конца. И, хотя ошибки были незначительными: где-то не сдвинута стенка или не соблюдены отметки – в дальнейшем, умножаясь в прогрессии, они могли бы привести к непредвиденным последствиям. При проектировании Центра гимнастики поиск ошибок шел в полуавтоматическом режиме, будучи основан на внимательном просмотре модели для выявления ненужных пересечений.
В новой версии ARCHICAD 21, разработанной GRAPHISOFT, поиск и выявление коллизий усовершенствованы – она позволяет моментально искать несоответствия между двумя группами элементов, определяемых пользователем, сигнализируя о проблемах и указывая «больные» места.
По мнению архитекторов ТПО «Прайд», один из главных залогов успешного проектирования – ранние договоренности между конструкторами и архитекторами об условиях работы, создание регламента совместной работы, поскольку на увязку сложных BIM-моделей требуется время.
Удобство открытого проектирования можно оценить, в частности, на следующем примере: конструкторы компании «Казанский Гипронииавиапром», работавшие с разными разделами конструктива, монолитные железобетонные несущие конструкции разрабатывались в Revit, а металлоконструкции перекрытий – в Tekla, взаимодействуя между собой – внутри одной компании – посредством BIM-модели, созданной в ARCHICAD архитекторами ТПО «Прайд». Как и в случае с инженерными сетями, точкой сборки стал формат IFC: с его помощью был осуществлен обмен между программными платформами и разделами проекта.
Архитектурный полет
Самый выразительный элемент здания – кровля, стал и одним из самых сложных для архитектурного проектирования. Согласно замыслу, визуальный эффект переливающейся чешуи волны должны были формировать алюминиевые кассеты декоративной облицовки, закрепленные на фальцевой основе.
Поэтому, помимо поиска геометрии выразительного силуэта волны, сомасштабного объему здания и его окружению, было необходимо найти и соответствующие материалы, которые бы отвечали поставленным задачам: изгибались под нужным углом и герметично стыковались бы друг с другом, поскольку водосточные желоба идут по крыше. А также производителя, который мог бы выполнить их. Еще одним параметром была повторяемость, то есть типизация различных элементов: ферм, кассет, фальца, так как разнообразие модулей значительно влияет на экономику проекта.
Для создания параметрической модели конструкции кровли, позволяющей быстро производить подбор по заданным характеристикам, была использована программа Rhinoceros/Grasshopper. Сделать полноценными BIM-элементами для использования в привычной для архитектора среде полученные трехмерные фигуры, смоделированные в этой программе, позволила недавно разработанная динамическая связь с ARCHICAD посредством дополнения Grasshopper-ARCHICAD Live Connection. Двунаправленный обмен данными между ARCHICAD и Rhino/Grasshopper позволил перенести сложную геометрию здания в привычный для архитекторов формат и выполнить сложнейшие расчеты.
Будущее информационного моделирования
В процессе проектирования применение BIM-технологий позволило сократить сроки работ и избежать дорогостоящих переделок на стройке, OPEN BIM помог оптимизировать взаимодействие между смежниками и управление проектом в целом.
Даже сегодня, во время стройки, в BIM-модель вносят дополнительную информацию, корректируя материалы и элементы, связанные отделочными работами. BIM-модель будет востребована и после завершения всех работ. К примеру, ее можно будет предоставить службе эксплуатации здания, облегчив, таким образом, ее работу с коммуникациями.
По убеждению архитекторов ТПО «Прайд», развитие OPEN BIM подхода и использование формата IFC должны идти параллельно с введением единого BIM-стандарта проектирования на государственном уровне, что позволило бы регламентировать обмен информацией между различными платформами и компаниями в сфере проектирования, строительства и эксплуатации зданий – и подготовить всех участников к введению в 2019 году применения BIM-технологий в качестве обязательного условия для объектов госзаказа.
справка
Творческое производственное объединение «Прайд» создано в 2013 году и сейчас насчитывает более 60 сотрудников. Компания выполняет весь комплекс проектных услуг, от концепции до функции генпроектировщика и технического заказчика. ТПО «Прайд» активно использует технологии информационного моделирования зданий, создавая BIM-модель на этапе разработки архитектурной концепции и дорабатывая ее на последующих стадиях работы.
В портфолио ТПО «Прайд», помимо ЦХГ Ирины Винер – благоустройство территории комплекса «Лужники», временные сооружения Большой арены Лужников, концепция градостроительного развития территории Военной академии имени Петра Великого, ЖК «Вавилова, 69»; концепция для экспериментальной площадки реновации в соавторстве с Zaha Hadid Architects, концепция станции метро «Шереметьевская» совместно с аргентинской Estudio A+3, ЖК «Селигер-Сити» совместно с MLA+.







Информация:
-
мастерская: ТПО «Прайд»
-
где: Россия. Москва
-
проекты: Центр художественной гимнастики имени Ирины Винер-Усмановой в Лужниках / ООО «Метрополис», ЗАО «Казанский ГипроНИИавиапром», ТПО «Прайд»
где: Россия. Москва
авторский коллектив:
Руководитель авторского коллектива, автор идеи:
Сергей Кузнецов, Николай ГордюшинООО «ТПО Прайд»
ГАП: Елена Валерьевна Мызникова, Артём Александрович Мызников, Крестьянчик Виталий Геннадьевич
Руководитель проекта: Татьяна Андреевна Лойко
Главный специалист, архитектор: Максим Викторович Александров
Ведущий архитектор: Ирина Александровна Середина, Евгения Александровна Измайлова, Юлия Викторовна Дацкевич, Екатерина Николаевна Овчаренко
Инженер: Катарина Александровна Фигероа ОкориоООО «Метрополис»
Руководитель отдела САПР: Светлана Валериевна Пархоменко
Ведущий инженер-проектировщик ОвиВК: Евгения Юрьевна Эменджиянц
Главный специалист СС: Андрей Олегович Курило
Ведущий инженер-проектировщик ТМХ: Евгения Алексеевич Шульга
Ведущий инженер-проектировщик ЭС: Олег Владимирович Мельник
Главный специалист конструкторского отдела: Максим Андреевич Фомичев, Петр Вячеславович Корсаков
Главный специалист ВкиПТ: Кочетова Ольга ЮрьевнаООО «Компания инженерные технологии»
Главный специалист ОвиКВ: Ренат Рустемович Хисаном, Артем Викторович Шелемов Главный специалист ЭС: Станислав Владимирович ЛетниковООО «Казанский Гипронииавиапром»
Главный специалист конструкторского отдела: Марат Рафикович Сафиуллин, Михаил Викторович Индейкин



Ваш комментарий будет первым